


Project Description
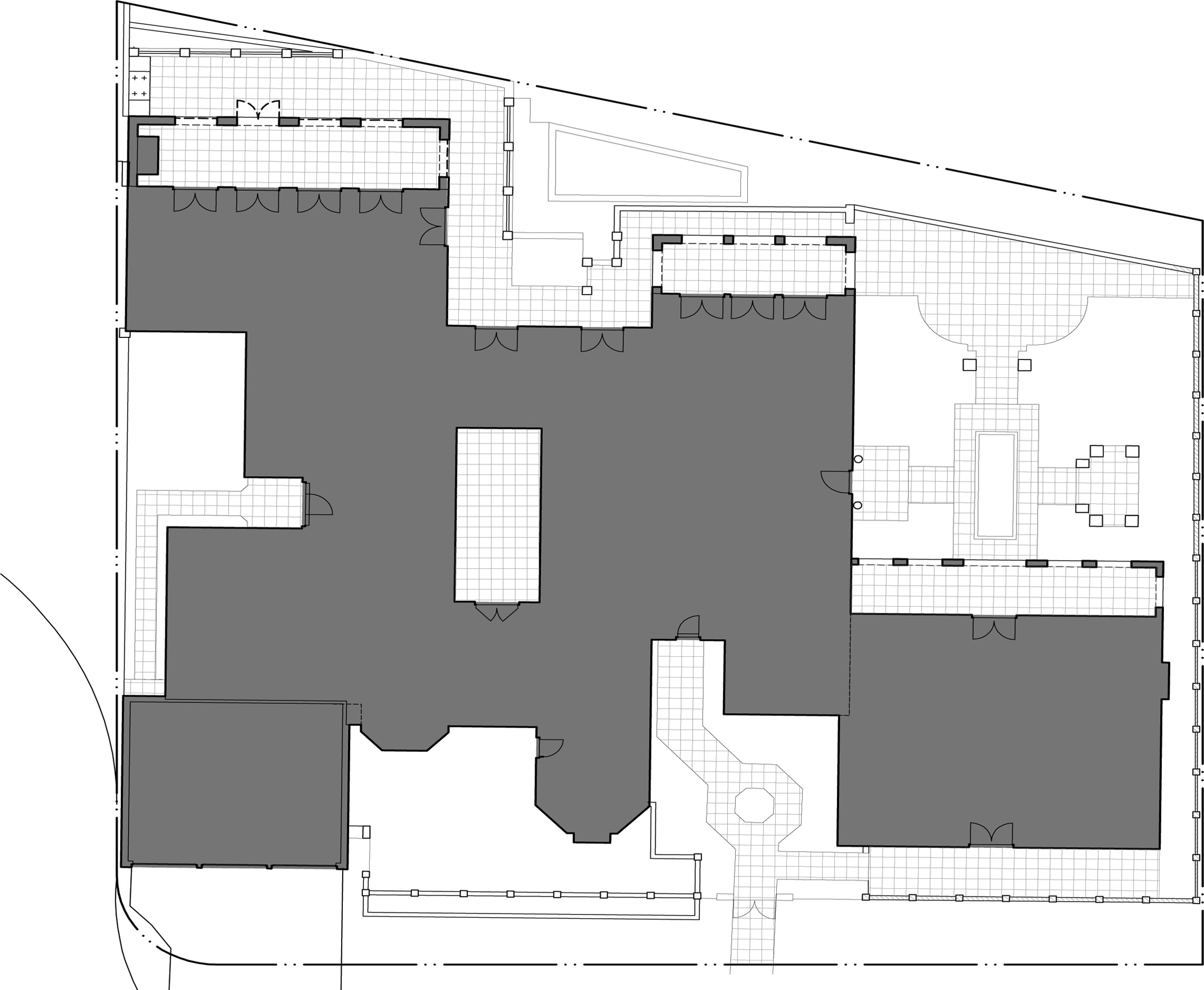
The scope of work for the 2 - story 13,400 SF house in North Dallas, included built - ins, house addition , and renovation drawing
Project Details
- Date: 2019
- Tags: Single-family
The scope of work for the 2 - story 13,400 SF house in North Dallas, included built - ins, house addition , and renovation drawing