

Project Description
Dry Clean Super Center
Argyle, TX
Office/Warehouse
Project Details
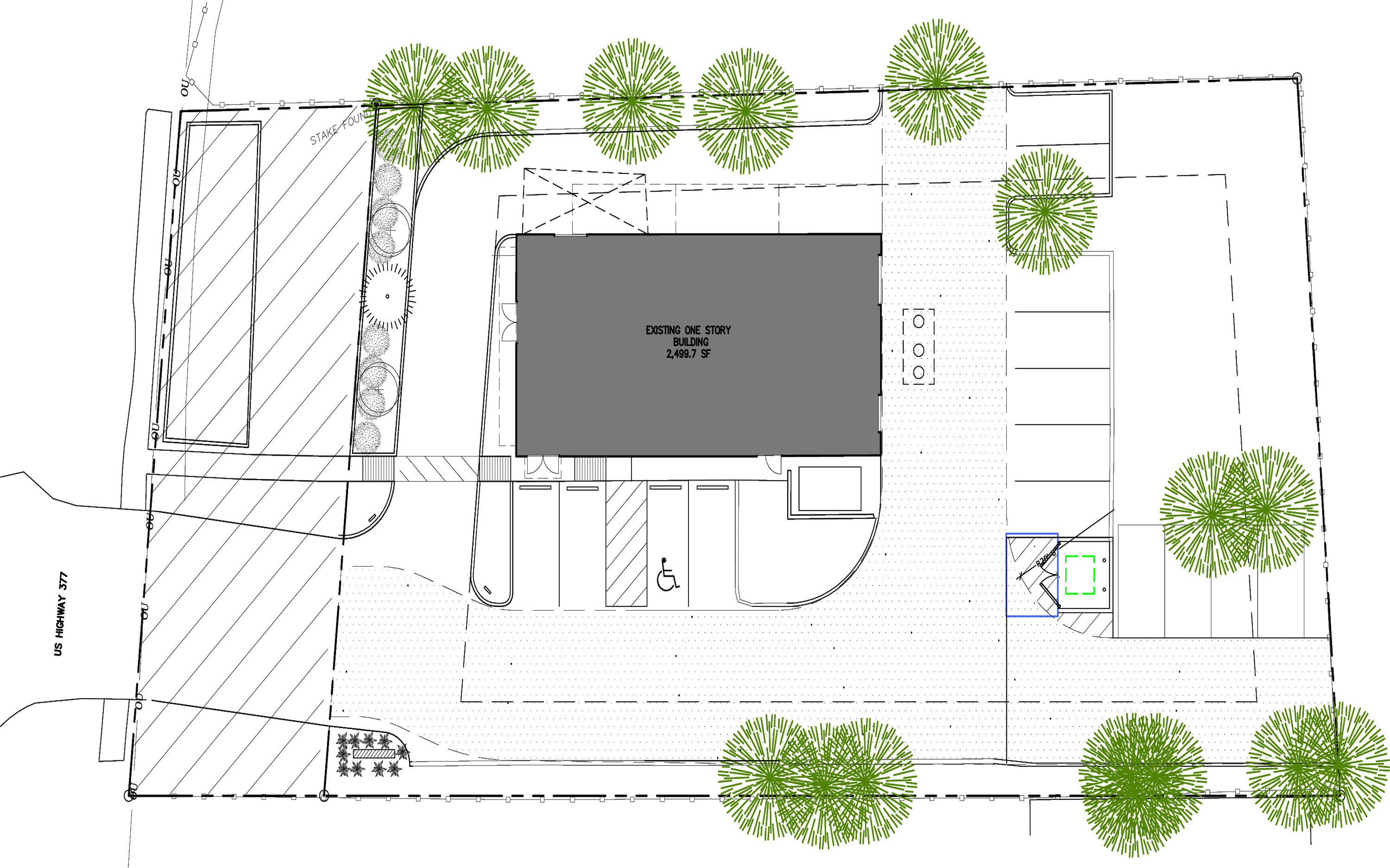
The careful site planning, landscaping, site drainage, accessibility, monument sign, and building entry relocation challenges are due to the acquisition of the property front to widen the adjacent highway. The key to the success was to keep the office/industrial/warehouse normal business operations affected by the requirements.
- Date: 2019
- Tags: Office