

Project Description
Masonic Building 3rd-Floor Office, Deep Ellum
Dallas, TX
Office/Warehouse
Project Details
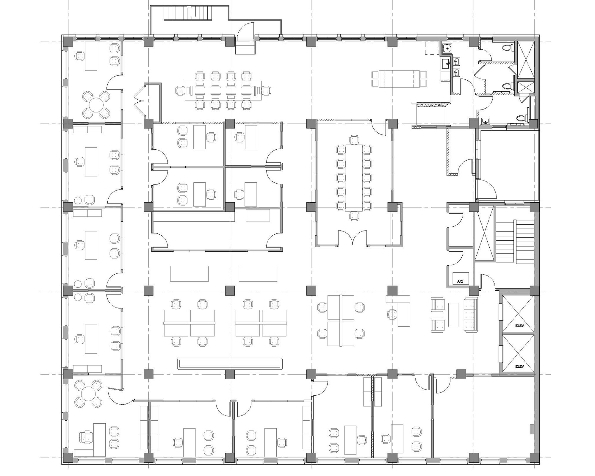
The 9,000 SF modern office space is located in the heart of the Dallas downtown/ Deep Ellum area. It features open collaborative spaces, transparency, and connectivity throughout. Offices are arranged along outside walls with large windows and a great amount of natural light. Each office has several frameless glass panels that project the City views and plenty of daylight to the central spaces.
- Date: 2020
- Tags: Office